你梦想中的居家氛围是什么样子的?是高级大气
发布时间:2022-10-16 21:47来源: 未知难怪越来越多人喜欢“大横厅”户型,看了她家就知道了,通透敞亮
沐沐说:
早晨透过窗户捡到一束光,在傍晚把它还给太阳;
让生活中的那一份悠然惬意,在每天的梦里回旋。
你梦想中的居家氛围是什么样子的?是高级大气、质朴自然还是简约温馨?
成都太太小雅说:这几个特点全都想要。

为了实现自己所想,小雅和先生挑中了一套150㎡的大平层,这套房子是他们花了很多时间才确定下来的,价格和位置都合适,虽然格局上带有不少硬伤但是它有一个大横厅,这一点让小雅非常满意,所以最终确定买了它。

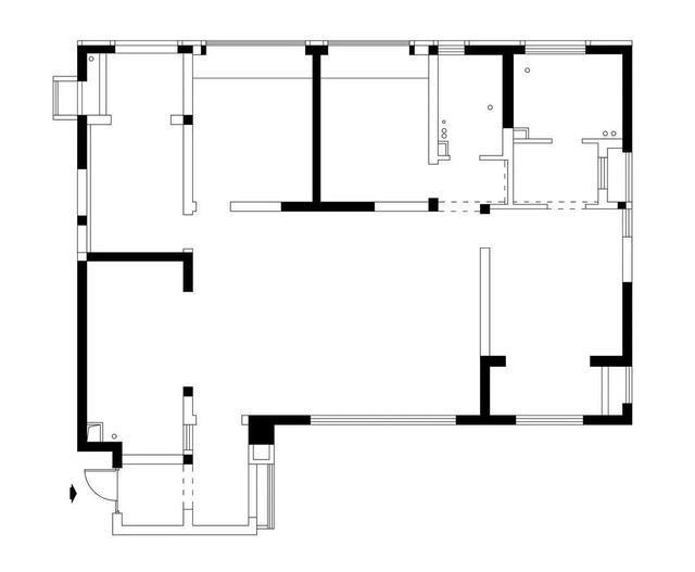
▲原始户型图
原始户型存在不少问题,比如入户太狭窄,完全没有大平层的感觉、厨房的自然采光太差、主卧门对着过道缺乏隐私性、生活阳台和设备间太小不好利用等。
于是小雅找到专业的设计师对室内格局进行了改造:
1、拆除入户与厨房之间的隔墙,改成玻璃窗并向厨房内移,扩大玄关;
2、改变主卧房门位置,增加卧室隐私性以及收纳空间;
3、公卫干湿分离;
4、生活阳台与儿童房设计成套房,并用折叠门隔开,功能更灵活化;

▲平面布局图
在确定了平面布局后,小雅决定风格以现代简约为基础,但是采用原木色+白色为主色调,希望能打造一个温润质朴但是又简约舒适的居家生活氛围。
整个装修,从硬装到软装以及家具家电,一共花费了50W,下面和沐沐一起来看看这个钱花的值不值。
宽敞明亮的“大横厅”

▲客餐厅一体化的大横厅
小雅说,自己之所以买这套房子,绝大部分的原因都是因为这个让她“一见钟情”的大横厅,她实在是太喜欢了;房子的建筑面积150㎡,其实也算不上大平层,但是有了这个大横厅后,一进到室内就立马感受到了大平层的氛围。
大横厅主要是客厅和餐厅的空间:
①客厅

客厅是一家人日常休闲的地方,因为是三代人同住,小雅对客厅的要求就是简约明亮但是要温馨,最好还能带着几分雅致高级。
客厅虽然没有阳台但是有超大面积的落地窗将窗外的自然光带进室内,通铺的灰色柔光砖、无主灯的吊顶,先把干净简约的基调营造了起来。

▲电视背景墙

▲电视背景墙
因为有老人同住所以客厅还是安装了电视,原木色的木饰面中内嵌电视机,搭配悬空电视柜,简约中也带着质感;形态禅意的马醉木也点缀的恰到好处。

两组浅灰色的布艺沙发都是比较休闲的款式,靠背可以随意调整,最主要的是两边都可以随意坐,这样一来,客厅的日常场景就更多元化了。

在客厅侧面的过道处定制了一组嵌入式的收纳柜,白色的柜门与墙面融为一体削弱了柜体的逼仄感,其中的黑色开放格和玻璃柜门又避免了整体单调。
②餐厅

餐厅就在沙发背后,与客厅共处在同一个空间内,通铺的地砖、一体式的吊顶,拉伸了大横厅的视觉感,这样的空间感才是大平层的既视感。

餐厅很简单,就是一套餐桌椅,餐桌选择了鱼肚白的哑光岩板台面搭配黑色金属结构,是现在比较流行的款式,颜值很高;

最个性的是餐桌上方的吊灯,为了打破客餐厅顶面的平淡,设计师特意选择了这款自由形态的灯具。
厨房

厨房和入户之间设计了一块玻璃隔墙,既给厨房增加了自然采光也能在做饭的时候一眼看到回来的家人;
厨房内的色调并没有延续客餐厅的温润,而是以黑白灰为主,打造了一个干净简约的空间。
主卧

推门进入主卧,这个空间完全延续了客餐厅的氛围和色调,小雅说,自己很喜欢这种干净温馨的环境。

床头定制了半高的护墙板,既可以作为床头背景又是床头靠背,直接买个简单的床架又省钱又环保。
护墙板上方的墙面采用留白的方式,侧面搭配一副小尺寸的装饰画,两盏黑色的蘑菇台灯,很有艺术气息。

床尾定制了整排的通顶衣柜,完美的解决了小雅对收纳的需求,阳台定制小书桌和书柜,既可以作为先生的办公区也可以是小雅的梳妆区。
儿童房


儿童房的设计是小雅最喜欢的了,因为现在孩子还小需要和大人睡一起,但是考虑到以后还可能会有二胎所以儿童房内暂时放了上下床,既能玩耍又能解决睡觉的问题。

儿童房外还有一个休闲区是专门留给小孩子的活动室,与儿童房之间用折叠门隔开,以后孩子长大了还能把活动室改成他的独立书房,非常实用。


活动室里定制了收纳柜,还预留了钢琴位置,以后可以放钢琴也可以放书桌,看孩子的兴趣决定。
卫生间

公卫做了干湿分离,因为干区尺寸有限可以定制的台面较窄,所以选择了台中盆,湿区内安装玻璃淋浴房实现干湿分离。

主卫相对还算宽敞,定制了双台盆洗漱台,这样早高峰的时候就不用抢卫生间了。

